Szanujemy Twoją prywatność
Używamy plików cookie oraz podobnych technologii do:

Masz pełną kontrolę nad swoimi zgodami i możesz je w każdej chwili zmienić. Więcej informacji znajdziesz w naszej [Polityce prywatności].


Masz pełną kontrolę nad swoimi zgodami i możesz je w każdej chwili zmienić. Więcej informacji znajdziesz w naszej [Polityce prywatności].

Współpracujemy z zaufanymi partnerami, w tym z Google, którzy mogą przetwarzać Twoje dane:

  • w celach reklamowych (ad_personalization),  

  • do pomiaru skuteczności kampanii (ad_user_data).

Funkcjonalne (niezbędne)
Analityczne
Marketingowe
146.79 m²
33,00 zł/m2
parter
FWR-LW-197765

4 844 zł

Lokal na wynajem

Szczegóły oferty

Symbol oferty FWR-LW-197765
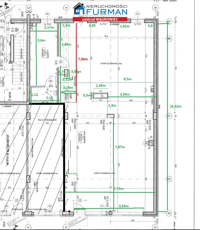
Powierzchnia 146,79 m²
Powierzchnia użytkowa [m2] 146,79 m²
Rodzaj budynku blok
Kaucja zabezp. 9680
Piętro parter
Typ kaucji dwumiesięczna
Okna PCV
Rodzaj lokalu jednopoziomowy
Przeznaczenie lokalu biurowy, handlowo-usługowy, handlowy, usługowy
Czynsz najmu netto /m2 4 884 PLN
Pomieszczenia
Katarzyna Poprawa

Katarzyna Poprawa

Specjalista ds. nieruchomości - Wągrowiec

Napisz wiadomość 39 Ofert

Opis nieruchomości

ATRAKCYJNY LOKAL HANDLOWY NA WYNAJEM, WĄGROWIEC UL.ŚREDNIA
 

Oferujemy Państwu lokal handlowy na nowym osiedlu na ul. Średniej w Wągrowcu. Witryny od strony ul. Średniej. Bezpośrednio przy ciągu komunikacyjnym.

*
Miejsca parkingowe bezpośrednio przed lokalem. 

*
Duże witryny - pozwalają na widoczną reklamę oraz bardzo dobre doświetlenie lokalu. 

_________________________

LOKAL  O POW. 146,79m2  -  NA PARTERZE BUDYNKU 
 Sala, wc, pomieszczenie socjalne
________________________

 

Bardzo dobra lokalizacja - na osiedlu zlokalizowanych jest wiele lokali usługowych i handlowych.
Blisko PKP i PKS. 

_____________
 

MEDIA: ogrzewanie C.O. z sieci miejskiej - rozliczane co miesiąc na podstawie własnych liczników ciepła, energia elektryczna oraz woda - według indywidualnych liczników, instalacja kablowa telewizyjna i internetowa
 

C E N A: 33 zł netto miesięcznie -4.844 zł netto + VAT 23%


OPŁATY: 
 media według liczników prąd, woda, ogrzewanie

Wymagana wpłata zwrotnej kaucji zabezpieczającej w wysokości dwumiesięzcnego czynszu netto
 

 

POLECAM I ZAPRASZAM NA PREZENTACJĘ LOKALU !!!

Specjalista ds. nieruchomości - Wągrowiec

Proszę wprowadzić poprawne imię i nazwisko
Proszę wprowadzić poprawny numer telefonu
Proszę wprowadzić poprawny adres e-mail
Proszę zaznaczyć wymagane zgody
Rozwiąż równanie:
14 4
Niepoprawny wynik